Menu
NOSS
Home
Sobre
Projetos
Contato
NOSS
Rua Marquês de Itu, 837 cj.63
Vila Buarque - São Paulo - SP
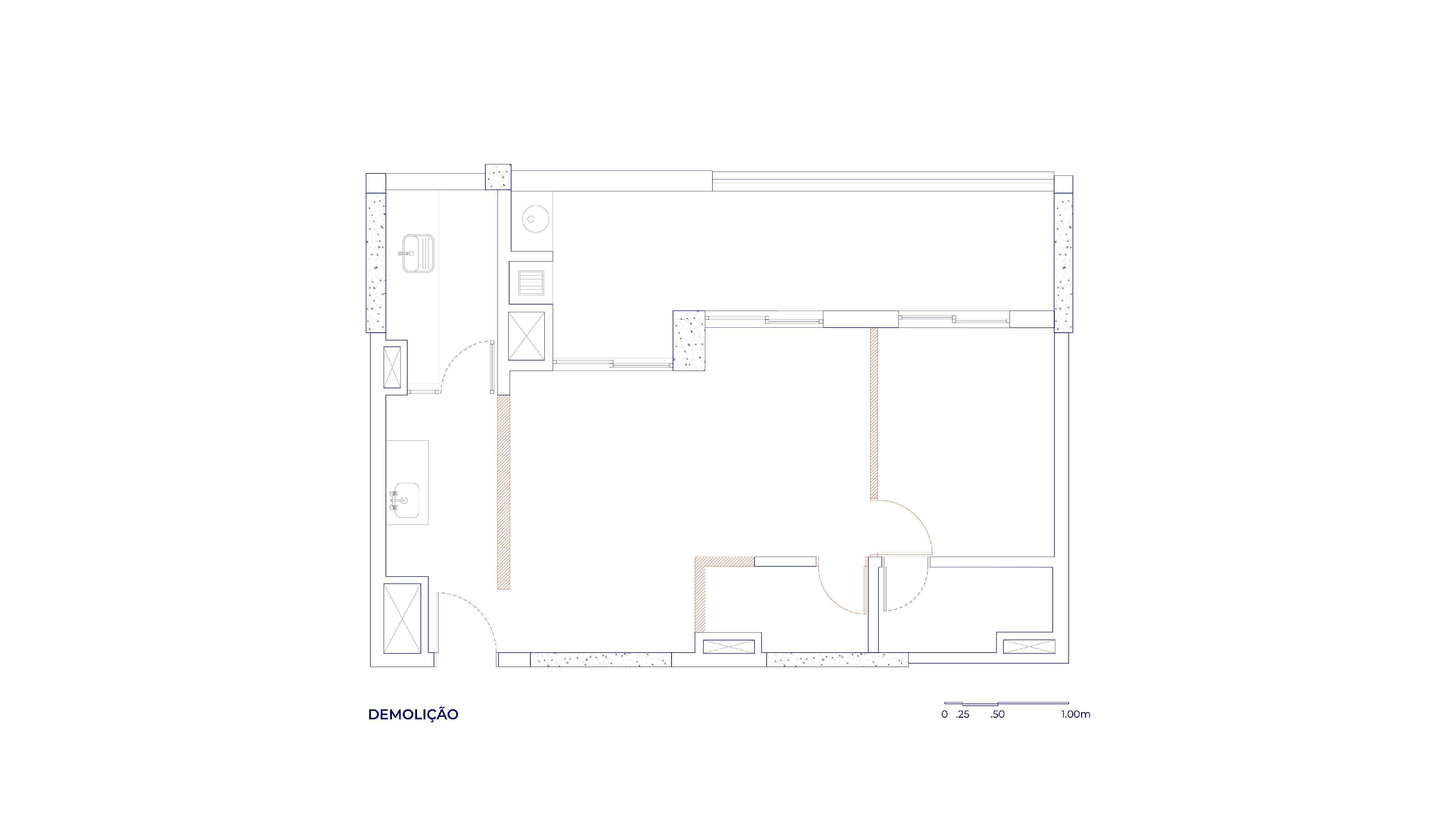
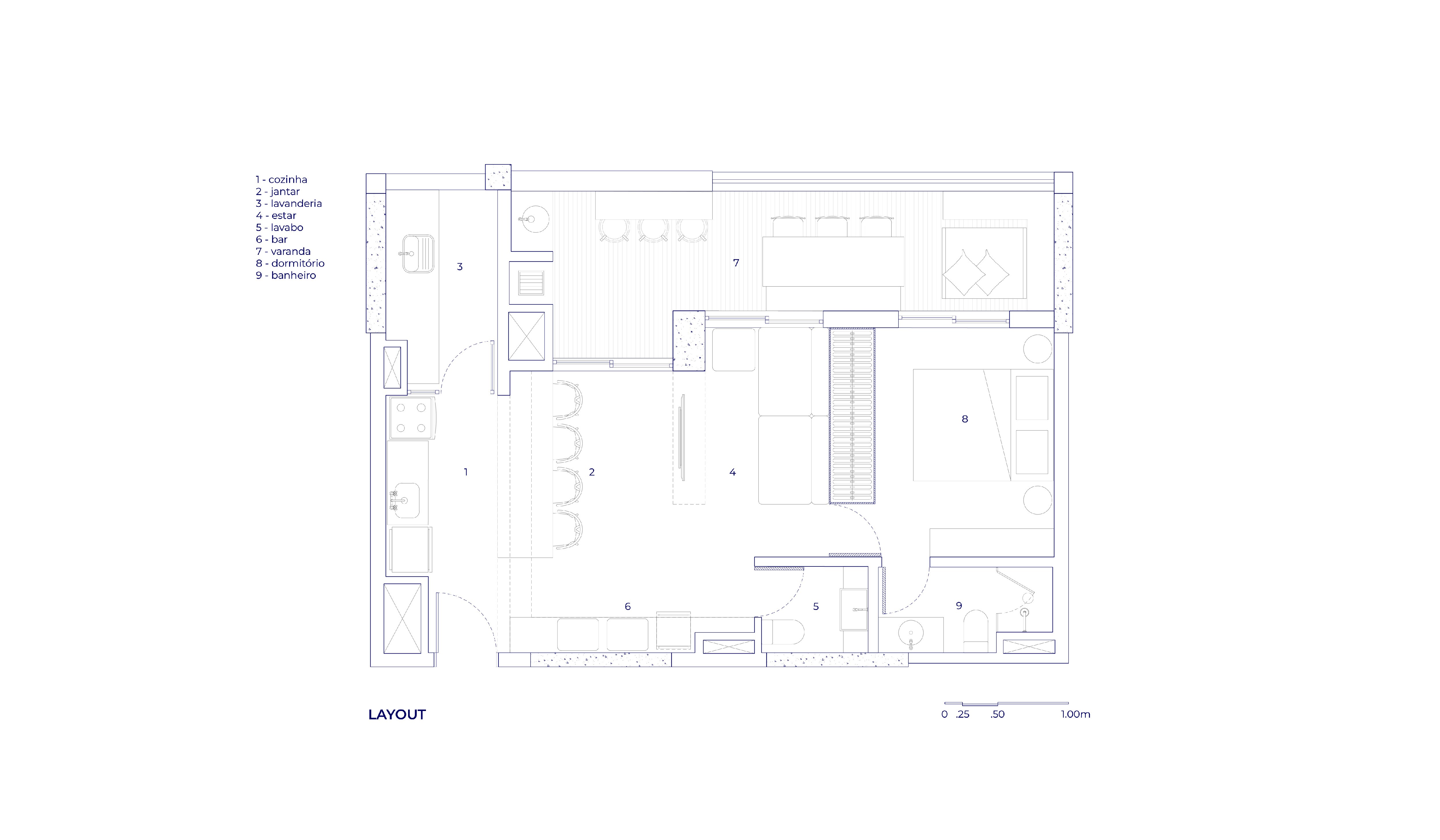
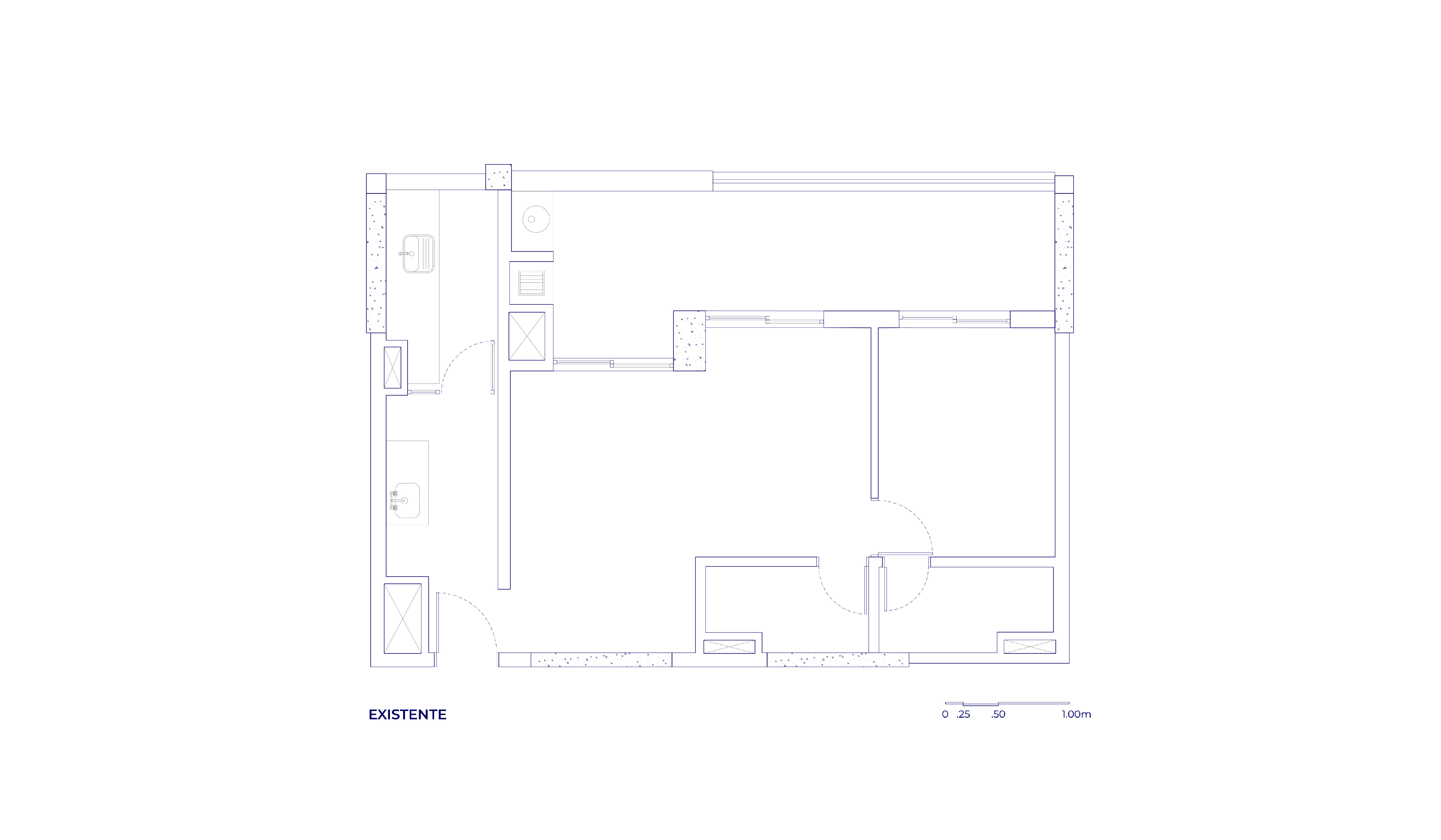
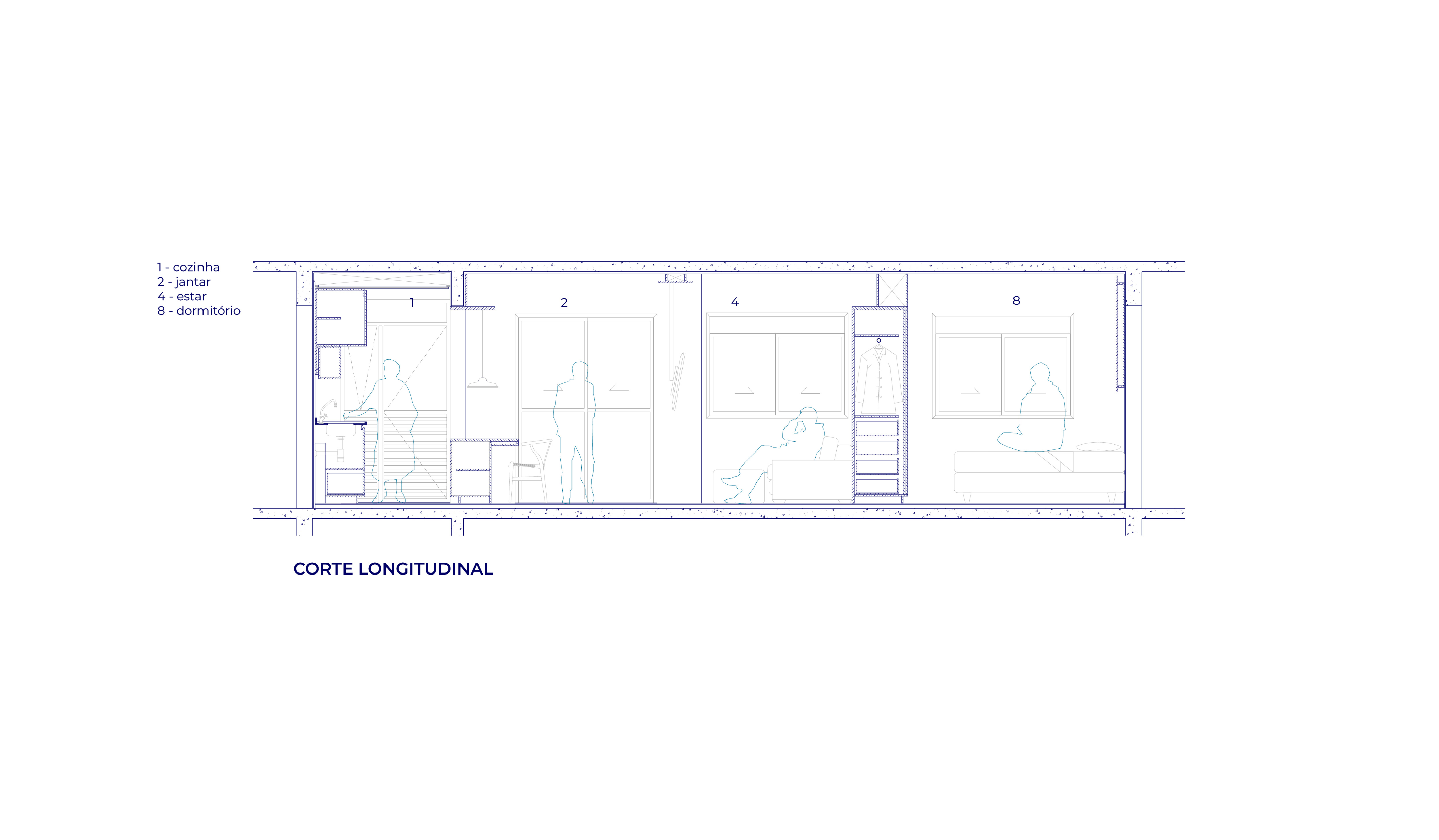
Apartamento PM93
Informações
Informações do projeto
Apartamento PM93
Interiores – 66m²
São Paulo, 2021 - Obra Concluída
1 / 4
1
/
9